Venda • Novo • Santa Felicidade
Rua Engenheiro Ronald Machado da Luz, 34 — Curitiba/PR








Se não tiver vídeo, remove essa aba ou joga um teaser curto.
Subsolo
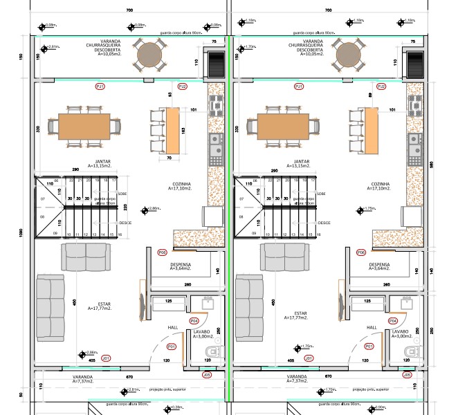
Térreo
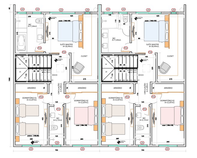
Superior
Cortes/Elevações
Sem tour? Oculta a aba e pronto.
3 dormitórios
3 banheiros
4 vagas
260,95 m² construídos
Quintal ~100 m²
Entrega Abril/2026
Sobrado
Sobrados à venda — Residencial Santa Felicidade
Curitiba • Santa Felicidade • Rua Engenheiro Ronald Machado da Luz, 34
Medidas podem alterar*
Área (Execução)
260,95 m²
Área computável (Pref.)
170,00 m²
Vagas
4
Dormitórios
3
Banheiros
3
Entrega
Abril/2026
Descrição
Sobrados projetados para conforto térmico, iluminação natural e baixa manutenção.
Ambientes integrados no térreo, varanda gourmet com churrasqueira, infraestrutura pronta para ar-condicionado
e aquecimento a gás. Esquadrias em alumínio preto e amplo quintal privativo (~100 m²).
Diferenciais
Fechadura eletrônica
Tomada p/ carro elétrico (EV)
Infra ar-condicionado
Aquecimento a gás (preparado)
Churrasqueira / varanda gourmet
Rede pressurizada
Áreas e metragem
| Subsolo | Térreo | Superior | Total área privativa | Total construído | |
|---|---|---|---|---|---|
| Resid. 01 | 82,60 | 76,30 | 76,30 | 170,00 | 260,95 |